Kindertagesstätte Aschaffenburg

© Eibe Sönnecken
© Eibe Sönnecken
© Eibe Sönnecken
© Eibe Sönnecken
© Eibe Sönnecken
© Eibe Sönnecken
© Eibe Sönnecken
© Eibe Sönnecken
© Eibe Sönnecken
© Eibe Sönnecken
© Eibe Sönnecken
© Eibe Sönnecken
© Eibe Sönnecken
© Eibe Sönnecken
© Eibe Sönnecken
Lageplan
Grundriss EG
Grundriss 1.OG
Schnitt A
Galeriebild_kita
Galeriebild_kita

KINDERTAGESSTÄTTE ASCHAFFENBURG
Neubau einer sechsgruppigen, integrativen Kindertagesstätte am Anwandeweg in Aschaffenburg

Standort Nilkheim, Aschaffenburg
Bauherr Stadt Aschaffenburg, Amt für Hochbau und Gebäudewirtschaft
Bauweise Holzständerbau
BGF 1.822 m²
Fertigstellung 2023
Vergabeform Nichtoffener Realisierungswettbewerb mit nachgeschaltetem Vergabeverfahren, 1. Preis
Leistungsphasen 19

Ein zweigeschossiger, L-förmiger, kompakter Baukörper vervollständigt die Bebauung des neuen Quartierszentrums. Er setzt einen markanten städtebaulichen Akzent am Übergang zur Parkanlage. Nach Osten hin öffnet sich auf dem Grundstück ein großer geschützter Freibereich, zu dem alle Gruppenräume und der Mehrzweckraum orientiert sind.

 

Der Haupteingang liegt zentral am geplanten Quartiersplatz, der Personaleingang ist zu den Stellplätzen hin orientiert. Die Küche hat einen separaten Zugang, über den auch die Anlieferung erfolgt.

 

Der Foyer- und Wartebereich bildet das Zentrum des Neubaus. Er erhält Licht von zwei Seiten und verbindet den Haupteingang mit dem Garten. An ihm liegen die KiTa-Leitung mit Sprechzimmer für Elterngespräche und der Kinderwagenraum sowie der Ess- und der Mehrzweckraum. Von hier aus werden auch die U3-Gruppenräume erschlossen. Im Obergeschoss erreicht man die Ü3-Gruppenräume, alle Gruppenräume haben einen direkten Zugang ins Freie. Der Familienstützpunkt mit ebenfalls eigenem Zugang nach Außen vervollständigt das Angebot an Familie.

 

Bei schlechtem Wetter können die Spieflure vor den Gruppenräume als zusätzliche Bewegungsfläche genutzt werden. Im Krippenbereich sind den Gruppenräumen »Hausschuh-Terrassen« als Erweiterung des Innenraums vorgelagert.

 

Die beiden integrativen Gruppenräume und die Therapieräume sind zu einem Nutzungscluster zusammengefasst. Den Mittelpunkt bildet ein Aufzug, durch den leichte Zugänglichkeit und kurze Wege garantiert werden. Grundgedanke ist die Inklusion im Sinne einer gleichberechtigten Teilhabe.

Der Multifunktionsraum, der Essraum und das Foyer können bei Bedarf, z.B. bei KiTa-Festen, über Schiebetüren direkt miteinander verbunden werden. Die angrenzende Terrasse erweitert den Raum bei schönem Wetter. Durch die Empore im Mehrzweckraum wird auch das Obergeschoss einbezogen.

Die KiTa wird als Holzbau auf einer betonierten Bodenplatte errichtet. Als Konstruktionsmaterial für die Decken wird Brettsperrholz vorgesehen für die Wände Ständerbauweise. Die Fassade ist eine horizontale, hinterlüftete Stülpschalung aus Lärchenholz. Die Fenster bestehen aus Holzprofilen mit Dreifachverglasung. Seitlich geführte Senkrechtmarkisen bieten den notwendigen Sonnenschutz.

 

Die Innenwände sind mit GK-Platten verkleidet. Sie können individuell gestaltet, beklebt oder als Pinnwand genutzt werden. Dort, wo Installationen verlaufen, werden Vorsatzschalen montiert. Deren Oberflächen werden in warmen Farben entsprechend dem Farbkonzept gestrichen. Die Decken sollen weiß bleiben. Sie sind wegen der Installationen abgehängt und akustisch wirksam. Alle Böden erhalten Fußbodenheizung und einen Belag aus Linoleum, ebenfalls nach Farbkonzept.

 

Die Kita ist als Passivhaus konzipiert. Die benötigte Primärenergie wird zum großen Teil durch Photovoltaik-Elemente auf dem Flachdach erzeugt. Ein im Technikraum aufgestellter Strom-Pufferspeicher gewährleistet eine maximale Ausnutzung. Die Nachhaltigkeit des Baus wird durch den nachwachsenden Rohstoff Holz gewährleistet. Die Wirtschaftlichkeit ist im Holzbau durch den hohen Grad an Vorfertigung und durch die geringen Spannweiten realisiert.

 

Die Freianlagen werden naturnah angelegt, mit Hügelausbildung, robustem Rasen und Spielinseln. Die Ränder, insbesondere zur Ausgleichsfläche hin, werden als »Dschungel« ausgebildet. Alle Gruppenräume haben einen überdachten Außenbereich, der auch bei schlechtem Wetter genutzt werden kann. Über die Balkone ist ein kurzer und direkter Zugang von allen Gruppenräumen in den Außenbereich möglich.

 

Sämtliche Räume und Außenanlagen sind barrierefrei erschlossen.

Texoversum

© Brigida Gonzalez
© Brigida Gonzalez
© Brigida Gonzalez
© Brigida Gonzalez
© Brigida Gonzalez
© Brigida Gonzalez
© Brigida Gonzalez
© Brigida Gonzalez
© Brigida Gonzalez
© Brigida Gonzalez
© Brigida Gonzalez
TEX_MSA-JKI-ASW
TEX_MSA-JKI-ASW
© Allmann Wappner Architekten, Menges Scheffler Architekten, Jan Knippers Ingenieure
TEX_MSA-JKI-ASW
TEX_MSA-JKI-ASW
© Allmann Wappner Architekten, Menges Scheffler Architekten, Jan Knippers Ingenieure
TEX_MSA-JKI-ASW
TEX_MSA-JKI-ASW
© Allmann Wappner Architekten, Menges Scheffler Architekten, Jan Knippers Ingenieure
© Allmann Wappner Architekten, Menges Scheffler Architekten, Jan Knippers Ingenieure
© Allmann Wappner Architekten, Menges Scheffler Architekten, Jan Knippers Ingenieure
00:00:00 00:00:00

TEXOVERSUM
Neubau eines Ausbildungs- und Innovationszentrums

Standort Reutlingen
Bauherr Südwesttextil e. V.
BGF 4.200m²
Fertigstellung 2023
Vergabeform Wettbewerb, 1. Preis
Projektteam Allmann Wappner Architekten, Menges Scheffler Architekten und Jan Knippers Ingenieure
Leistungsphasen 19

Auf dem Campus der Hochschule Reutlingen entsteht das Texoversum, ein Lehr-, Forschungs- und Innovationszentrum für die Querschnittstechnologie Textil. Als Teil eines Ensembles wird der Neubau im Rahmen des Masterplanes für die Erweiterung des Campus Reutlingen entwickelt und umgesetzt. Das Texoversum setzt sich als kraftvoller und gleichzeitig kommunikativer Baustein in das städtebauliche Gefüge der Hochschule. Allmann Sattler Wappner Architekten, Menges Scheffler Architekten und Jan Knippers Ingenieure sind als Team für den Entwurf verantwortlich. Sie wurden im Gutachterverfahren mit dem ersten Preis ausgezeichnet und anschließend mit der Realisierung beauftragt. Das Texoversum umfasst fast 3.000 Quadratmeter Fläche für unterschiedliche Nutzergruppen. Es beinhaltet Werkstätten, Labore, die international renommierte Sammlung historischer Stoff- und Gewebeproben der Hochschule Reutlingen, multifunktionelle Flächen für Forschung und Entwicklung sowie diverse Unterrichtsräume.

 

Das architektonische Konzept basiert auf einer vielfältigen Auseinandersetzung mit dem Thema textiles Bauen. So spiegelt sich das Entwurfsthema sowohl strukturell in der internen Verwebung der Funktionen wieder als auch in der indentitätsstiftenden repräsentativen Gebäudehülle. Die einzigartige, erstmalig so umgesetzte, Fassade aus Kohlenstoff- und Glasfasern repräsentiert die Innovationskraft und Zukunftsfähigkeit faserbasierter Werkstoffe und textiler Techniken. In einem an den Instituten von Achim Menges (ICD) und Jan Knippers (ITKE) an der Universität Stuttgart entwickelten, robotischen Wickelprozess kann jedes einzelne Fassadenelement individuell an die Erfordernisse der Nutzung angepasst werden. Ausgehend von drei Basismodulen transformieren sich die Elemente entsprechend dem Sonnenverlauf und bilden ein einzigartiges, vielschichtiges Erscheinungsbild. Die Elemente sind komplett selbsttragend und benötigen keine unterstützende Tragstruktur. Ihre versetzte Anordnung erlaubt freie Durchblicke. Neben funktionalen Anforderungen der Absturzsicherung und des außenliegenden Sonnenschutzes, erfüllt die Fassade ästhetische und repräsentative Ansprüche und schafft ein identitätsstiftendes Gebäude als Impulsgeber für die Technologie Textil.

 

Das Entwurfsthema Durchlässigkeit und Vernetzung setzt sich in der Konzeption des Baukörpers fort. In der inneren Struktur ist das Texoversum als offenes, transparentes Gebäude mit Split-Leveln gestaltet. Die halbgeschossig versetzten Ebenen, die über das Atrium auch visuell miteinander verwoben sind, verbinden die unterschiedlichen Nutzungsbereiche miteinander und bilden ein räumliches Kontinuum, das in einer großzügigen Dachterrasse seinen Abschluss findet. Die einzelnen Ebenen sind in ihrem Erscheinungsbild geprägt von einem robusten Werkstattcharakter mit robusten Industrieestrich- und Sichtbetonflächen sowie offen installierten Technikdecken. Als verbindende Elemente zwischen den Ebenen fungieren die als textile Räume gestalteten Sitzstufen. Einzelne Bereiche können bei Bedarf flexibel über Vorhänge abgetrennt werden. Das offene Raumkonzept schafft für die unterschiedlichen Nutzergruppen eine gemeinschaftliche Arbeitsatmosphäre, fördert die Kommunikation und bietet Plattformen für einen lebendigen Austausch.

Schönhof Viertel Bockenheim

2019_WBW_Bockenheim_Galeriebild
2019_WBW_Bockenheim_Galeriebild
© NH Studio
2019_WBW_Bockenheim_05
2019_WBW_Bockenheim_05
© NH Studio
1-L_Lageplan_MM.dgn
1-L_Lageplan_MM.dgn
2019_WBW_Bockenheim_08
2019_WBW_Bockenheim_08
2019_WBW_Bockenheim_09
2019_WBW_Bockenheim_09
AN_03-Block B Süd
AN_03-Block B Süd
2019_WBW_Bockenheim_06
2019_WBW_Bockenheim_06
2019_WBW_Bockenheim_04
2019_WBW_Bockenheim_04
2019_WBW_Bockenheim_02
2019_WBW_Bockenheim_02
2019_WBW_Bockenheim_03
2019_WBW_Bockenheim_03

SCHÖNHOF VIERTEL BOCKENHEIM

Neubau eines nutzungsgemischten Gebäudekomplexes

Standort Bockenheim, Frankfurt am Main
Bauherr Instone Real Estate Development GmbH
BGF 34.750 m²
Wohneinheiten 190
Fertigstellung 2021
Vergabeform Wettbewerb, 1. Preis Baufeld B, 2. Preis Baufeld G
Leistungsphasen 15
Projektteam Sander.Hofrichter Planungsgesellschaft mbH, Berlin

Die neue Mitte des Schönhofviertels wird durch zwei nutzungsgemischte Gebäudekomplexe mit dazwischenliegendem zentralen Quartiersplatz geschaffen. Wohnen, Bildung, Kommerz und eine Sporthalle werden in zwei »Stadtblöcken« organisiert und bilden die Neue Mitte des Quartiers.

 

Der Block als historisch etablierte polyfunktionale städtische Figur bildet das Grundgerüst für eine hybride Gebäudenutzung.

Die gestaffelte Höhenentwicklung reagiert auf die angedachte umliegende Bebauung, der Wohnungsbau mit seinen unterschiedlichen Gebäudetiefen profiliert und gliedert zusätzlich die Stadtbaukörper. Die heterogenen Nutzungen, Wohnen, Schule, Kindertagesstätte und Einzelhandel lassen sich im Gebäudeausdruck ablesen.

 

Das Baufeld B beinhaltet im Erdgeschoss die Nahversorgung des neuen Stadtquartiers: Zwei Supermärkte, mehrere Einzelhandelsgeschäfte und eine zum Quartiersplatz hin ausgerichtete Gastronomie.

Im ersten Obergeschoss liegen Arztpraxen oder Büros sowie eine Kindertagesstätte im Innenbereich.

Die restlichen Flächen und alle übrigen Obergeschosse bleiben ausschließlich dem Wohnen vorbehalten.

 

Diese städtische Nutzungsmischung trägt dazu bei, den Verkehr im Stadtteil auf Fahrrad und Fußgänger zu reduzieren.

Schönhofviertel Baufeld F

© NH STUDIO
© NH STUDIO
© NH STUDIO
Lageplan
Lageplan
Lageplan

SCHÖNHOFVIERTEL BAUFELD F
Neubau einer Wohnbebauung inkl. Kita

Standort Frankfurt am Main
Auslober Nassauische Heimstätte und Instone Real Estate Development GmbH
BGF 29.947 m²
Wohneinheiten 325
Fertigstellung 2020
Vergabeform Mehrfachbeauftragung

Kindertagesstätte Sternenbrücke

Standort Frankfurt am Main
Bauherr Caritasverband Frankfurt e.V.
Typologie Öffentlicher Bau
Zeitraum 20112012
Vergabeform Direktbeauftragung
Leistungsphase 29
Projektpartners Bearbeitung durch Scheffler + Partner Architekten BDA

Kindertagesstätte Sternenbrücke

Umbau von Büroräumen in eine Kindertagesstätte

In einem achtgeschossigen Wohngebäude, 1964 in Massivbauweise errichtet, wurde die erdgeschossige Lager- und Bürofläche zu einer dreizügigen Kindertagesstätte umgenutzt.

In der Einrichtung werden 47 Kinder in den Altersgruppen unter und über Dreijähriger sowie eine altersgemischte Gruppe ganztägig betreut.

Die neue Kindertagesstätte befindet sich im Hochparterre und wird über eine einläufige Treppe erschlossen. Durch einen Windfang gelangt man in den »Elternbereich« und darüber in den zentralen, innenliegenden Flur. Sämtliche Gruppen-, Funktions- und Nebenräume werden über diesen Flur erschlossen. Hier befinden sich sowohl die Garderoben als auch ein offener Spielbereich. Festverglaste Felder in den Trennwänden sorgen für eine natürliche Belichtung.

Alle Gruppen- und Funktionsräume sowie der Bewegungsraum haben über bodentiefe Fenstertüren einen direkten Ausgang ins Freie. Als Außenbereich dient den Kindern eine öffentliche Spielwiese, die über ein kleines, eingezäuntes Rasenstück erreichbar ist.

Schule am Eutiner See

Eingangssituation, ©Janusch
Eingangshalle, ©Janusch
Lageplan
Erdgeschoss
Isometrie Cluster
Organisation und Freiraumbezug
Eingangsbereich Cluster mit Seeblick
Fassadenschnitt

Neubau eines Bildungsensembles am Kleinen Eutiner See

Planungswettbewerb

Standort Eutin
Bauherr Stadt Eutin
Typologie educational building
BGF 11.565 m²
Zeitraum 2022
Vergabeform competition
Projektpartner Landschaftsarchitektur Grünmüller&Staiger GbR

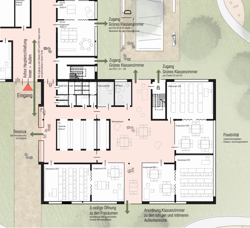
Am Kleinen Eutiner See entsteht ein neues Bildungszentrum, das Kita und Verkehrsübungsplatz integriert und sich harmonisch in die Umgebung einfügt. Die Schule ist entlang einer zentralen Achse organisiert, die laute Aktivitäten zur Seeseite und ruhige Lernbereiche zur Landseite hin ausrichtet. Alle Gebäude bieten Blickbeziehungen zum Wasser.

 

Der Entwurf sieht drei kubische Baukörper vor, die sich an der bestehenden Kita orientieren. Der zentrale Hauptbau ist dreigeschossig und umfasst gemeinsam genutzte Räume wie Aula, Mensa und Bibliothek, während die zweigeschossigen Gebäude die Jahrgangscluster aufnehmen. Eine Dreifeld-Sporthalle ergänzt das Ensemble und ist auch für Vereine nutzbar.

Die Gebäude werden als Holzskelettkonstruktionen mit vertikaler Holzschalung errichtet, wodurch sie sich natürlich in den Baumbestand einfügen. Ein Atrium als lichtdurchflutetes Zentrum fördert den Austausch und verbindet alle Ebenen. Die Jahrgangscluster sind um zentrale Mehrzweckflächen organisiert und ermöglichen durch großzügige Fenster und offene Strukturen flexibles Lernen mit direktem Außenbezug.

 

Die Erschließung erfolgt über die Lübsche Koppel mit einem multifunktionalen Campusplatz, der als Schulhof, Veranstaltungsort und Feuerwehrzufahrt dient. Fahrrad- und Pkw-Stellplätze sind integriert. Die Außenanlagen bieten Spiel- und Sportflächen sowie eine grüne Parkzone mit Bildungs- und Bewegungsbereichen.

Die Sporthalle ist separat zugänglich und ermöglicht mit einer verglasten Tribüne einen Seeblick. Die nachhaltige Holzbauweise gewährleistet kurze Bauzeiten, hohe Flexibilität und Wirtschaftlichkeit. Brandschutzmaßnahmen und barrierefreie Gestaltung sind umfassend berücksichtigt.

Kindertagesstätte Max Baginski

Standort Bad Soden
Typologie Öffentlicher Bau
Zeitraum 2007
Vergabeform Gutachterverfahren
Projektpartner Bearbeitung durch Scheffler + Partner Architekten BDA

 

Kindertagesstätte Max Baginski

Entwurf einer Kindertagesstätte

2. Rundgang